Відмінними рисами цього сучасного будинку з CLT-елементів є крутий скатний дах та чіткі форми.
При виборі оздоблення фасаду архітектори Finnlog надихалися традиційними будинками, тому обрали охру та темно-сірі дошки.
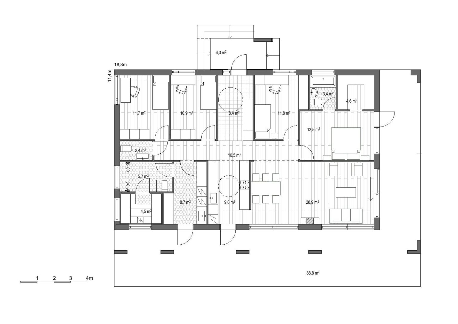
Будинок має 4 спальні, поруч з головною також розташовується місткий гардероб і окрема ванна кімната. Відкрита кухня-вітальня виходить на терасу, де приємно проводити вільний час потай від сторонніх очей.
Будь який проєкт Finnlog може бути змінено згідно ваших бажань.



















































































































































































































































































































































































































































































