Euphimia — це просторий двоповерховий будинок з клеєного бруса, виконаний у стилі сучасної класики, запроєктований українським архітектором Дмитром Фоменком.
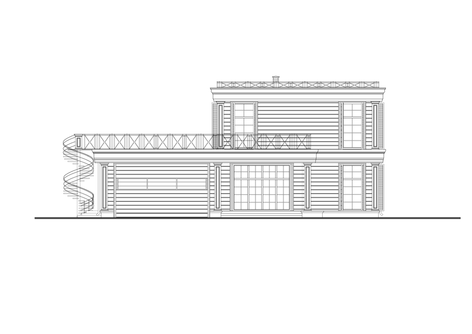
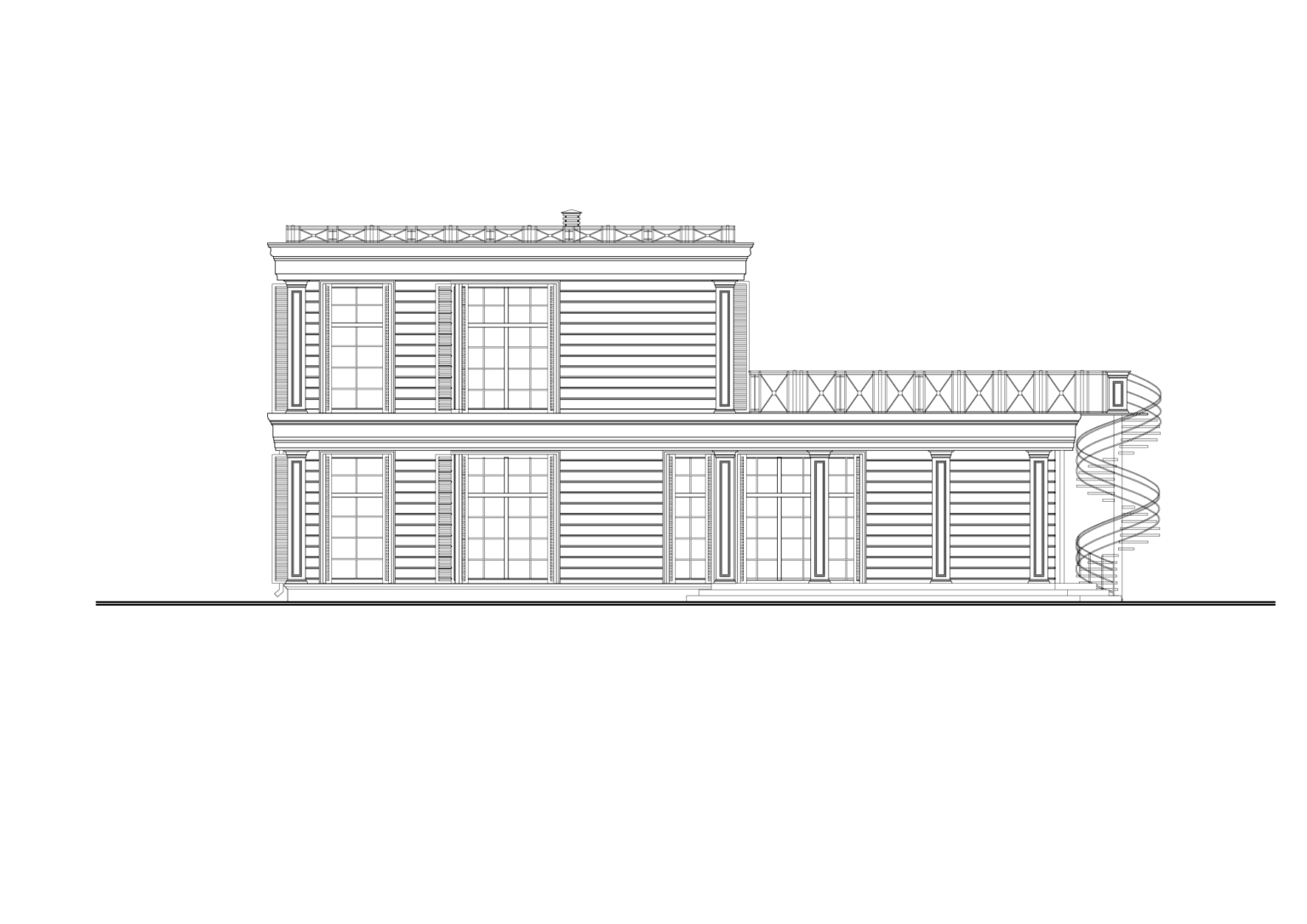
Завдяки великим вікнам зовнішній простір перетікає в інтер’єр та навпаки, що створює відчуття єднання з природою. Класичний фриз та застосування арочних отворів, декоративні елементи використовуються в цьому проєкті для того, аби розбити існуючі стереотипи про зовнішній вигляд деревʼяних будинків.
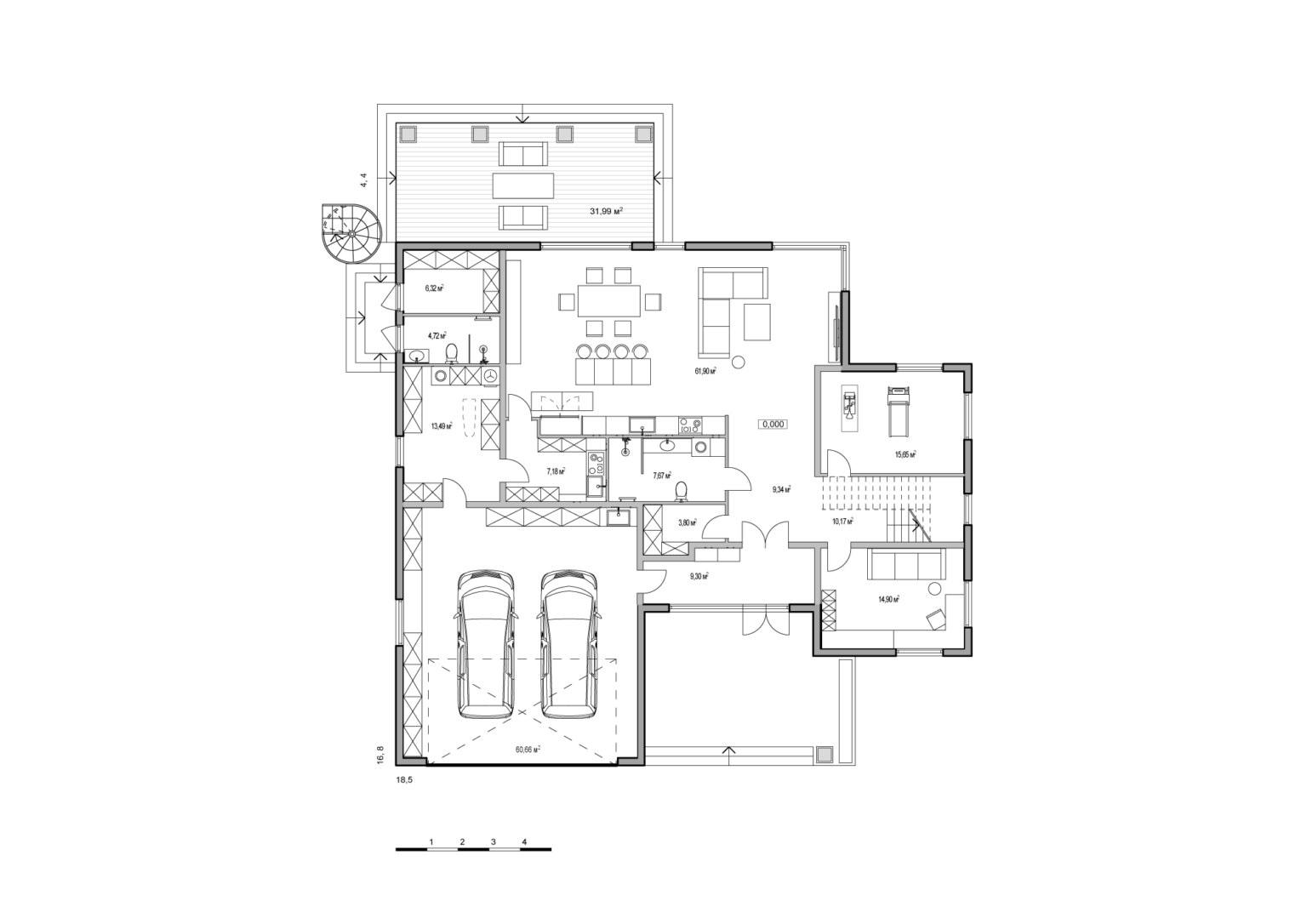
У будинку розташована велика вітальня, що має вищу за всі інші кімнати стелю і великі вікна по периметру для кращого освітлення.
Це приміщення складається з трьох зон: зона для спілкування та відпочинку, що передбачає можливість розташування каміна, і зони їдальні та кухні, яка має вхід до робочої кухні. Це додаткове приміщення створене для того, аби господарі чи їх помічники мали можливість проготувати ароматні страви, не заважаючи іншим мешканцям будинку.
На першому поверсі також розміщені кабінет, зала для занять йогою і підсобні приміщення — пральня, котельня та санвузол, в який можна потрапити з вулиці.
Другий поверх повністю приватний — тут розташовані три спальні кімнати з виходом на затишну терасу, санвузли та гардеробні.
Через вхідний тамбур можна потрапити в гараж на два авто. Під приміщенням гаражу передбачене укриття, розміри та наповнення якого залежать тільки від ваших потреб та можливостей. Зона укриття спеціально облаштована з краю будинку, аби мати можливість зробити другий вихід на поверхню на віддаленні від основної будівлі.
Цей будинок ідеально вписується в лісову атмосферу серед дерев, а також у передмісті із зеленими газонами.
Дмитро Фоменко — український архітектор, власник архітектурного бюро “Arte Development”, яке працює в Україні з 2000 року. Має великий досвід в проєктуванні і реалізації проєктів приватного житла. Основним принципом своєї роботи називає розумне поєднання зовнішнього вигляду будинку з його інтерʼєром та функціональністю.
З 2022 року Дмитро є учасником “групи Фостера” — робочої групи харківських архітекторів і урбаністів, які співпрацюють з командою британського архітектора Нормана Фостера у проєкті відбудови Харкова.
https://arte-development.com/ua



















































































































































































































































































































































































































































































