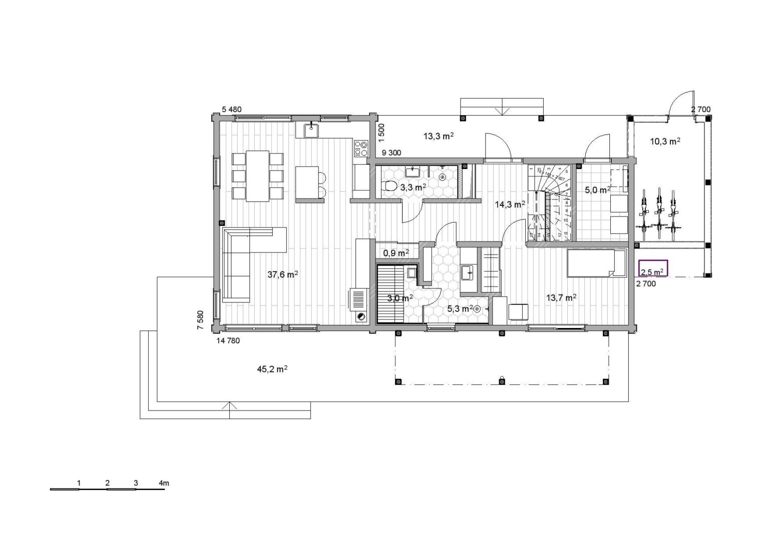
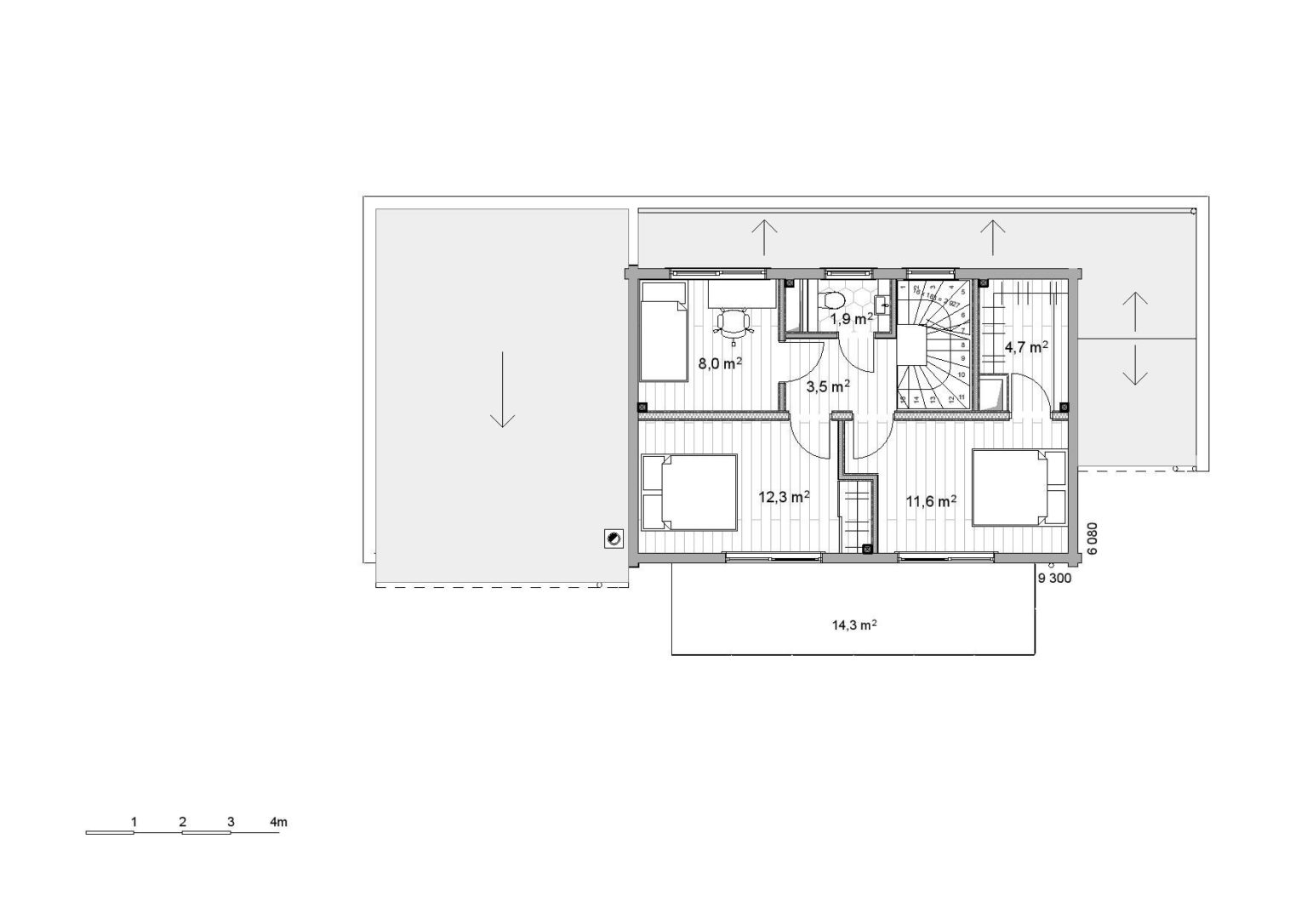
Проект дерев’яного будинку Uranus – це слушне рішення для шанувальників функціонального стилю, яке відмінно підійде для невеликої ділянки. Компактна форма поділяється на два рівні, які визначають архітектуру проекту. Що стосується планування, то всередині житлового будинку розташовані чотири спальні (одна з яких має окремий гардероб), вітальня, частина якої виділена як кухонний куточок, і їдальня, дві душові, додатковий туалет на другому поверсі та лазня. Крім того, заплановано технічне приміщення та комору з окремим входом. Завдяки тому, що у такій оселі продумано кожну деталь, кожен квадратний метр використовується оптимально. Велика площа, яку збудовано за допомогою скла, робить приміщення дуже просторими та світлими.
Подивіться, як можна змінити проект зробленого з колод будинку за вашим бажанням!
Чому варто купувати у Finnlog?




























































































































































































































































































































































































































































































