FILTREERI
Freyr
Цей сучасний одноповерховий будинок гармонійно зливається з навколишньою природою, забезпечуючи максимальну приватність та захопливі краєвиди.
Scanda
Scanda це затишний одноповерховий особняк з CLT-панелей для родини, яка цінує час і сімейний затишок.
Theodor
Theodor — це просторий двоповерховий будинок з клеєного бруса у сучасному стилі, спроєктований українським архітектором Дмитром Фоменком. Особливістю цього проєкту є те, що він може бути адаптований до абсолютно різного релʼєфу — від рівної ділянки в лісо-степових районах, до перепадів висот у гірській місцевості.
Thetis
Thetis це будинок з CLT-панелей для великої родини, яка цінує приватність та час разом.
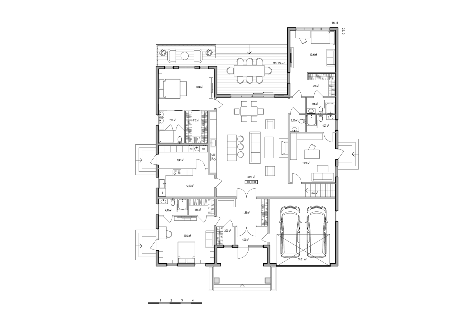
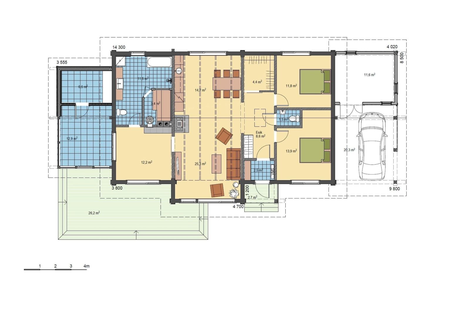
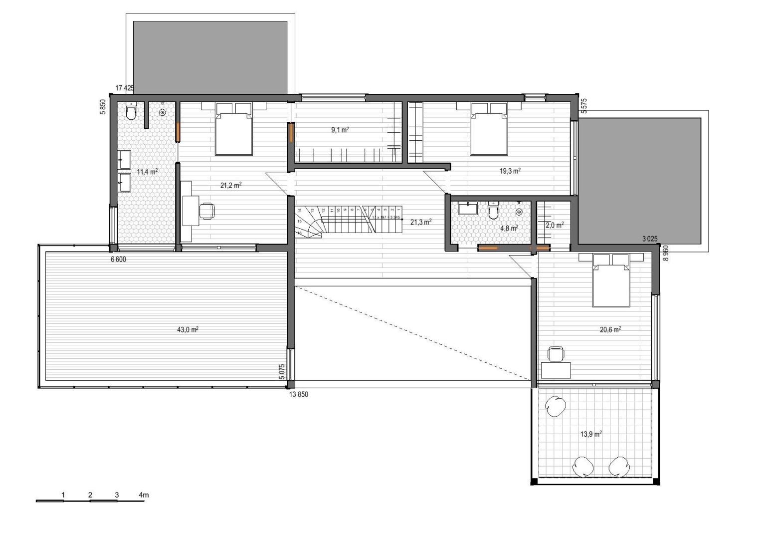
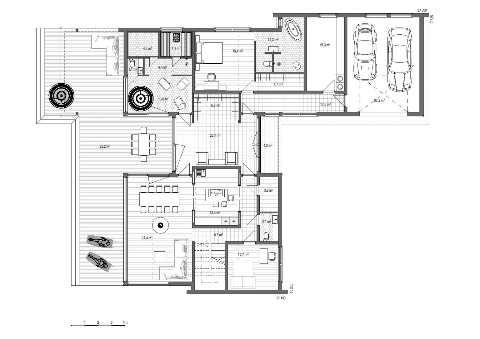
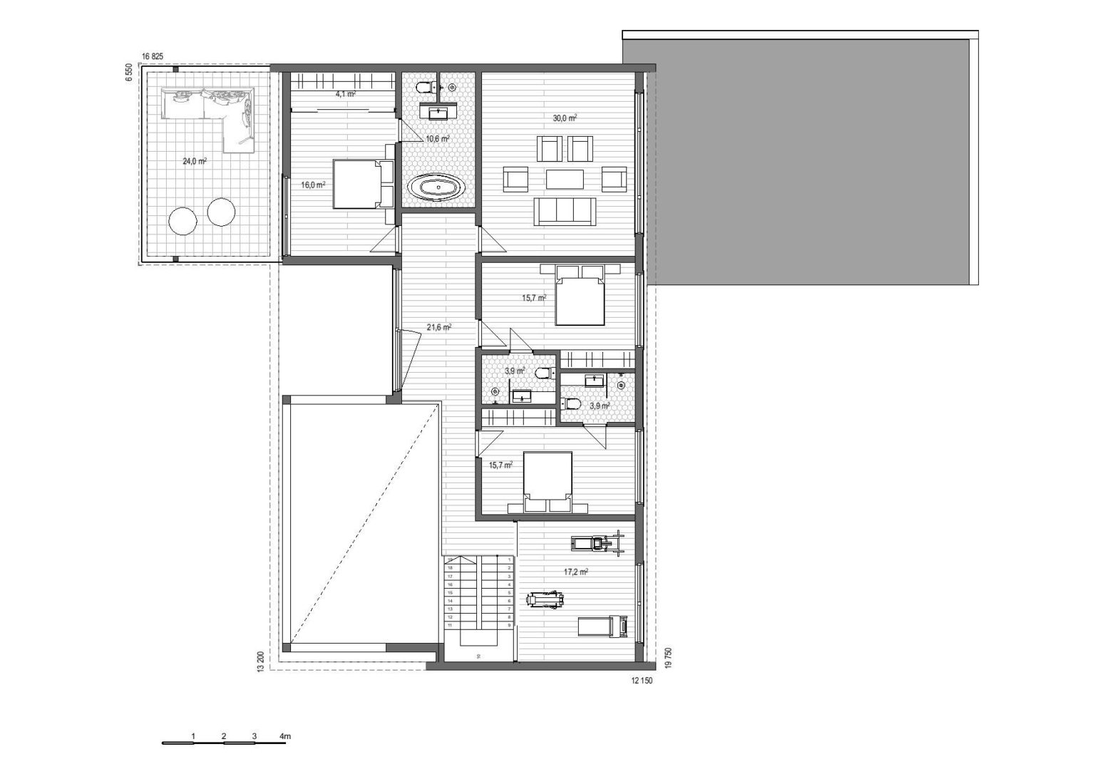
Nyx
Nyx це розкішний житловий будинок для великої родини, який складається з двох обʼємів — основного будинку та окремої зони лазні, та кімнат відпочинку, які за потреби можна використовувати як майстерню або гостьові спальні.
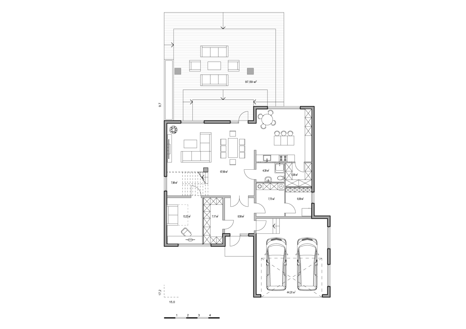
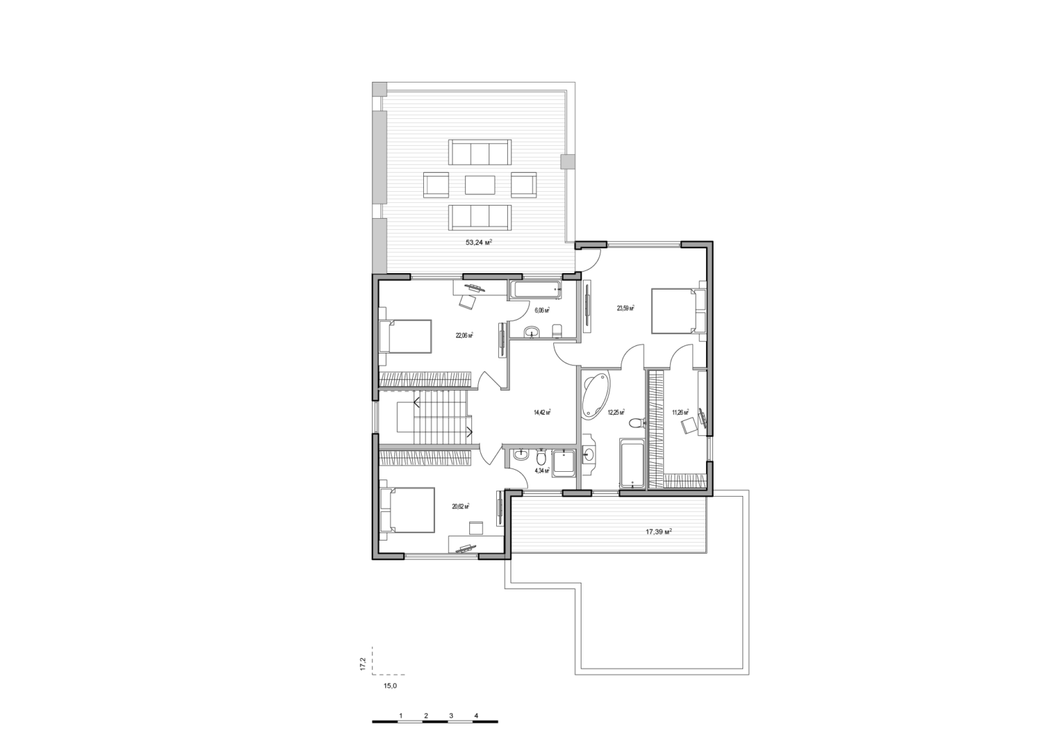
Lavryn
Lavryn — це двоповерховий будинок у сучасному стилі з клеєного брусу, зовні оздоблений металом та натуральним каменем. Будинок розрахований на велику родину, і має продумане планування для різноманітних сценаріїв щоденної рутини і святкових подій. Проєкт розроблено українським архітектором Дмитром Фоменком.
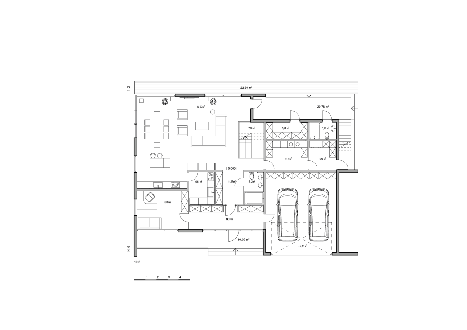
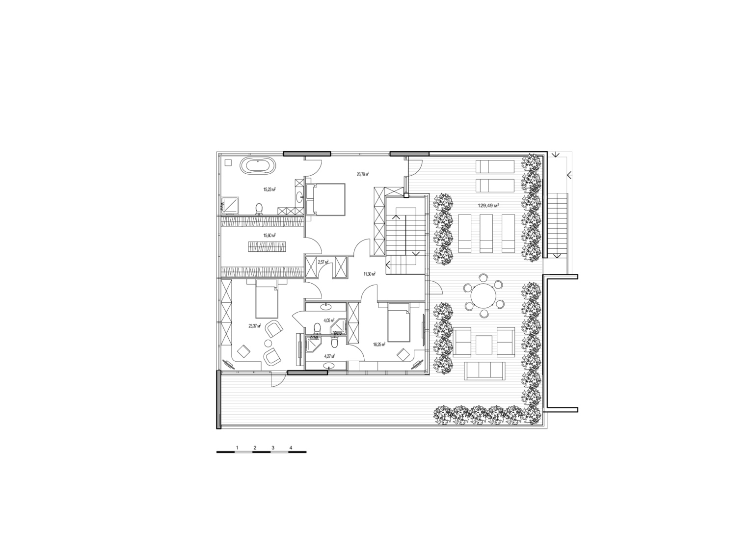
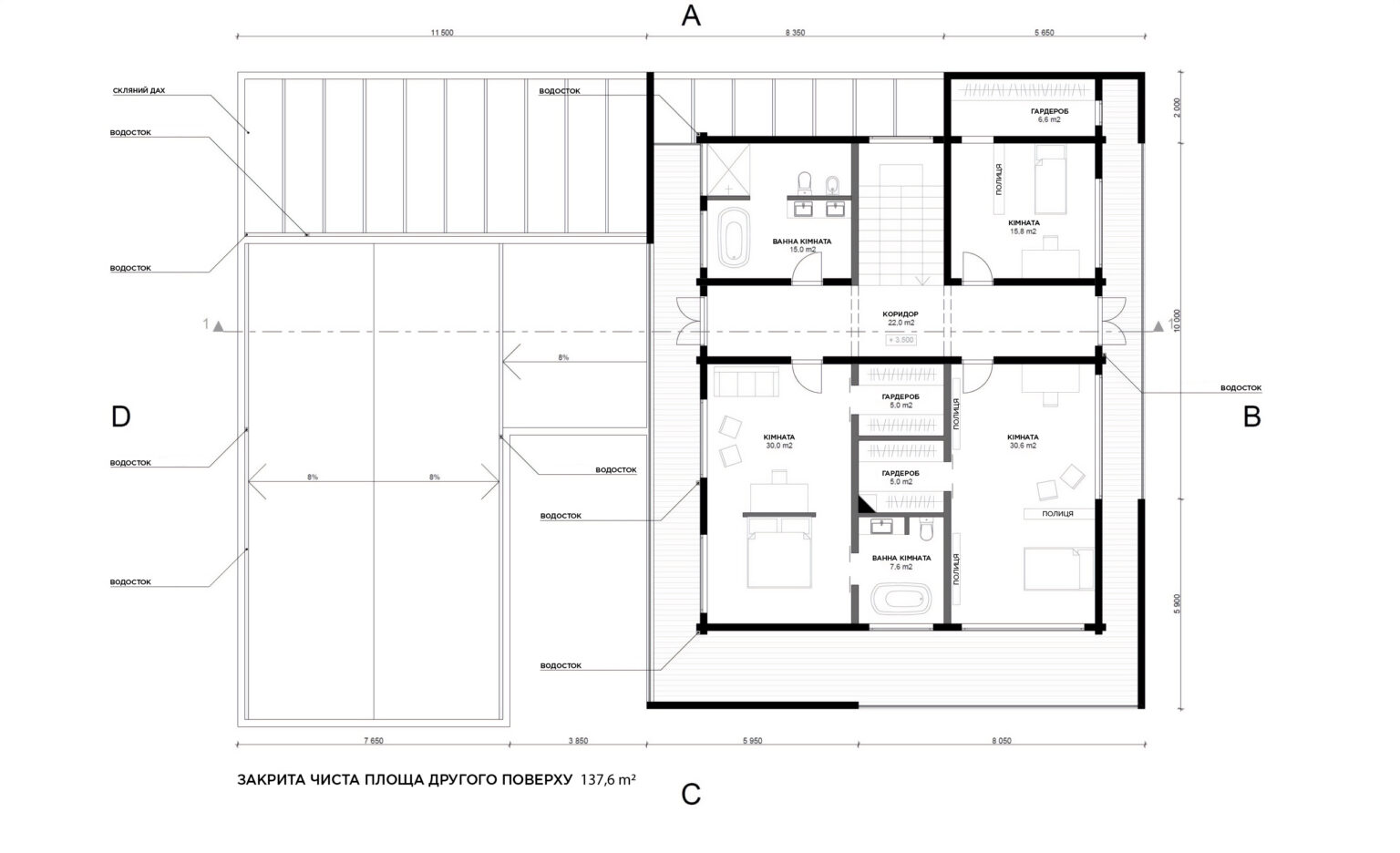
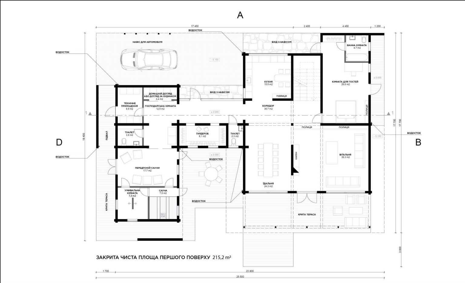
Nestor
Nestor — це просторий двоповерховий будинок у сучасному стилі, з використанням клеєного бруса, метала і натурального каменю. Проєкт розроблено українським архітектором Дмитром Фоменком. Два поверха будинку чітко зоновані по функціям — перший поверх для дозвілля, побутових справ, спілкування і взаємодії з родиною та гостями, другий же повністю приватний.
Euphimia
Euphimia — це просторий двоповерховий будинок з клеєного бруса, виконаний у стилі сучасної класики, запроєктований українським архітектором Дмитром Фоменком. Класичний фриз та застосування арочних отворів, декоративні елементи використовуються в цьому проєкті для того, аби розбити існуючі стереотипи про зовнішній вигляд деревʼяних будинків.
Dometii
Будинок з клеєного бруса Dometii — це простора одноповерхова дерев'яна вілла в стилі сучасної класики, запроєктована українським архітектором Дмитром Фоменком. Завдяки великим вікнам зовнішній простір перетікає в інтер'єр та навпаки. Класичний фриз та декоративні елементи підкреслюють статус господарів та унікальність архітектури.
Cassiopeia
Будинок з клеєного брусу Cassiopeia — це простора дерев’яна вілла в американському стилі. Світлі стіни, великі кімнати з балконами і простора дерев'яна тераса — всі ці деталі доповнюють одна одну і створюють відчуття простору, свободи і процвітання.
Domnikia
Domnikia — це простора одноповерхова дерев'яна вілла в стилі сучасної класики. Автор проєкту, український архітектор Дмитро Фоменко, ставив на меті створити затишний і добре продуманий будинок, зовнішній вигляд якого розбивав би існуючі стереотипи про архітектуру деревʼяних будинків.
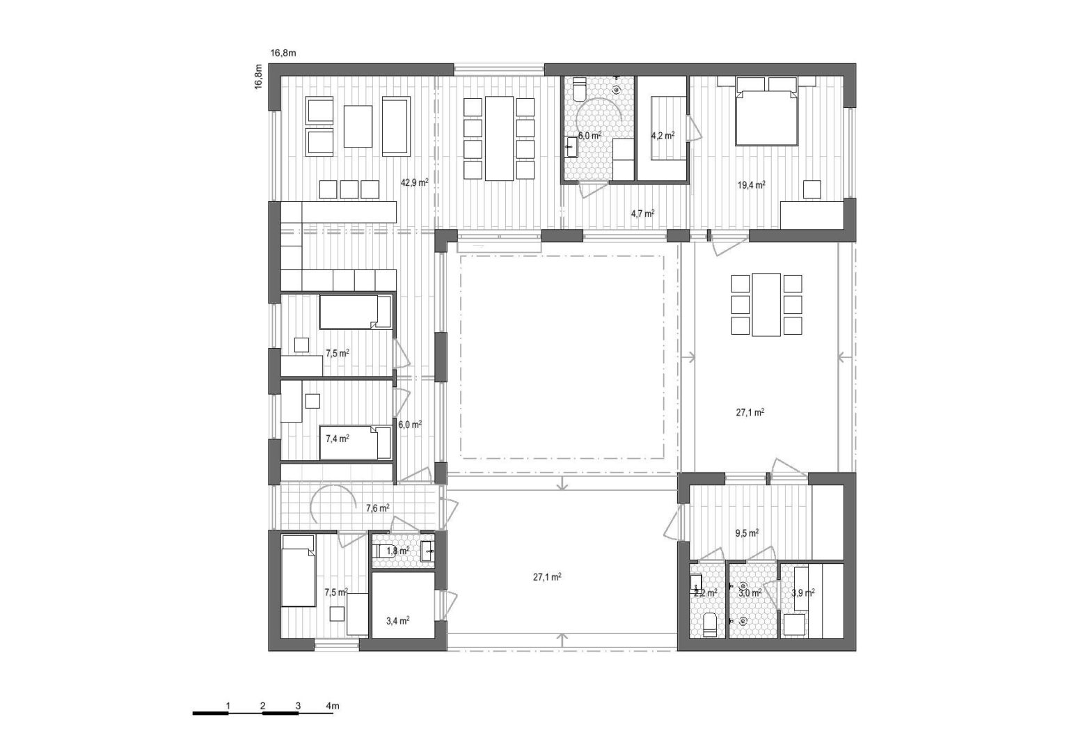
Hetena
Одноповерховий збірний будинок з CLT-елементів Hetena є сучасною інтерпретацією традиційного будинку з атріумом, в якому житлові приміщення розташовані навколо внутрішнього двору.
Pegasus
Проєкт будинку Pegasus дуже логічний в своїй основі. Він ідеально підходить для великої родини з гарним почуттям естетики. Тут є все для того, щоб відчувати себе комфортно.
Amma
Відмінними рисами цього сучасного будинку з CLT-елементів є крутий скатний дах та чіткі форми. При виборі оздоблення фасаду архітектори Finnlog надихалися традиційними будинками, тому обрали охру та темно-сірі дошки.
Vassa
Будинок з клеєного бруса Vassa — це простора одноповерхова вілла в сучасному стилі. Завдяки фризу по периметру та великим вікнам будинок ніби розчиняється у природному середовищі. Дерево, метал і натуральне каміння — всі ці матеріали доповнюють один одного і створюють атмосферу розкоші та процвітання.
Khionia
Проєкт Khionia — це продовження серії одноповерхових дерев’яних вілл. Оздоблений деревом, металом та камінням, будинок ідеально пасує для природнього середовища. Це будинок для великої родини, продуманий для максимального комфорту і затишку — кожна спальня має окремий санвузол та гардероб. Також проєктом передбачене підземне укриття під приміщенням гаражу.
Devana
Проєкт Devana характеризується простою, земною мовою дизайну. Будинок в плані вписаний в прямокутник, його планування чітке і практичне. Кімнати отримують багато денного світла завдяки великим вікнам.
Ulas
Ulas — це просторий одноповерховий будинок, виконаний у сучасній стилистиці з використанням дерева, метала і натурального каміння. Цей будинок ідеально вписується в лісову атмосферу серед дерев, а також у передмісті із зеленими газонами.
Beyla
Будинок Beyla є сучасним і мінімалістичним будинком вузької форми з CLT-елементів, який відмінно впишеться на вузькій ділянці або в міському середовищі.
Clota
Clota — це двоповерховий збірний будинок з CLT-елементів із неперевершеним зовнішнім виглядом.
Canopus
В цьому проєкті прямі форми поєднуються з консольними елементами. Будинок спроектовано з урахуванням міських умов.
Uranus
Проект дерев'яного будинку Uranus - це слушне рішення для шанувальників функціонального стилю, яке відмінно підійде для невеликої ділянки.
Satis
Satis – це одноповерховий компактний, але при цьому просторий будинок. Центром будинку є вітальня, яка з’єднана з кухнею-їдальнею і має вихід на терасу. Праворуч від вітальні розташовані дві спальні, а ліворуч — сауна з кімнатою для відпочинку. За ними є технічне приміщення і веранда з великою заскленою площею. До будівлі примикає навіс для автомобіля з […]
Columba
Columba це затишний і добре спланований будинок для великої родини або компанії друзів, якщо розглядати його в якості дачі.
Lyra
Lyra — це приклад поєднання класичної форми будинку з сучасним функціональним наповненням. Відмінними рисами цього проєкту є велика тераса на першому поверсі, а також спільний простір кухні, їдальні та вітальні, який простягається у висоту аж до мансардного даху.
Odin
Odin — стильний одноповерховий дерев’яний будинок з виразною архітектурою. Тут присутня нотка новизни та прямолінійності, що характерні для північних країн, однак можна побачити риси, властиві й південним країнам. Розташовані на різних рівнях односхилі дахи надають будинку особливого шарму, роблячи фасади дуже виразними.
Andromeda
Andromeda — затишна сучасна резиденція, куди можна повертатися, щоб насолодитися свіжим повітрям, незайманою природою та іншими перевагами життя за містом.
Sagitta
Sagitta ідеально підходить для людей, які цінують заміський спосіб життя. Будинок раціональний, але в той же час красивий. Він несе в собі впевненість і дух північних лісів, річок і озер, які пам’ятають епоху скандинавських вікінгів.
Kallisto
Kallisto — це елегантний житловий будинок, натхненний яхт-клубом. Саме тому на фасаді присутні круглі вікна та балкон, що виступає з основної споруди як капітанський місток.
Draco
Цей проект є найкращим прикладом поєднання сучасних технологій, цікавого дизайну та традицій будівництва дерев’яних будинків. Draco це будинок, який прослужить довгі роки і символізує якість, надійність і довговічність будинку для великої родини.
Cetus
Основною метою цього проєкту є гармонія сучасних технологій та природніх матеріалів, завдяки цьому Cetus ідеально вписується в навколишнє середовище.
Janus
Janus це будинок для однієї родини, що складається з двох окремих частин: одноповерхового блоку сауни та двоповерхового житлового блоку. План будинку дозволяє розмістити його на різних ділянках без втрати концепції та якості.
Long-short-long
Long-Short-Long це продукт співпраці Finnlog та естонського архітектора Сіґне Олопа. Це будинок для великої родини, який може бути збільшено або зменшено за вашим бажанням.
ВАРТІСТЬ БУДИНКУ
Інженер з розрахунку вартості будівництва будинку оперативно зробить точний розрахунок за вашими параметрами та надішле зручним для Вас способом.
ЗВОРОТНІЙ ЗВ'ЯЗОК
Маєте питання? Ми маємо на них відповіді! Заповніть цю форму, і ми зв'яжемось з вами для консультації у зручному форматі, аби надати всю інформацію стосовно будівництва оселі з клеєного брусу та CLT-панелей.




























































































































































































































































































































































































































































































