Будинок Beyla є сучасним і мінімалістичним будинком вузької форми з CLT-елементів, який відмінно впишеться на вузькій ділянці або в міському середовищі.
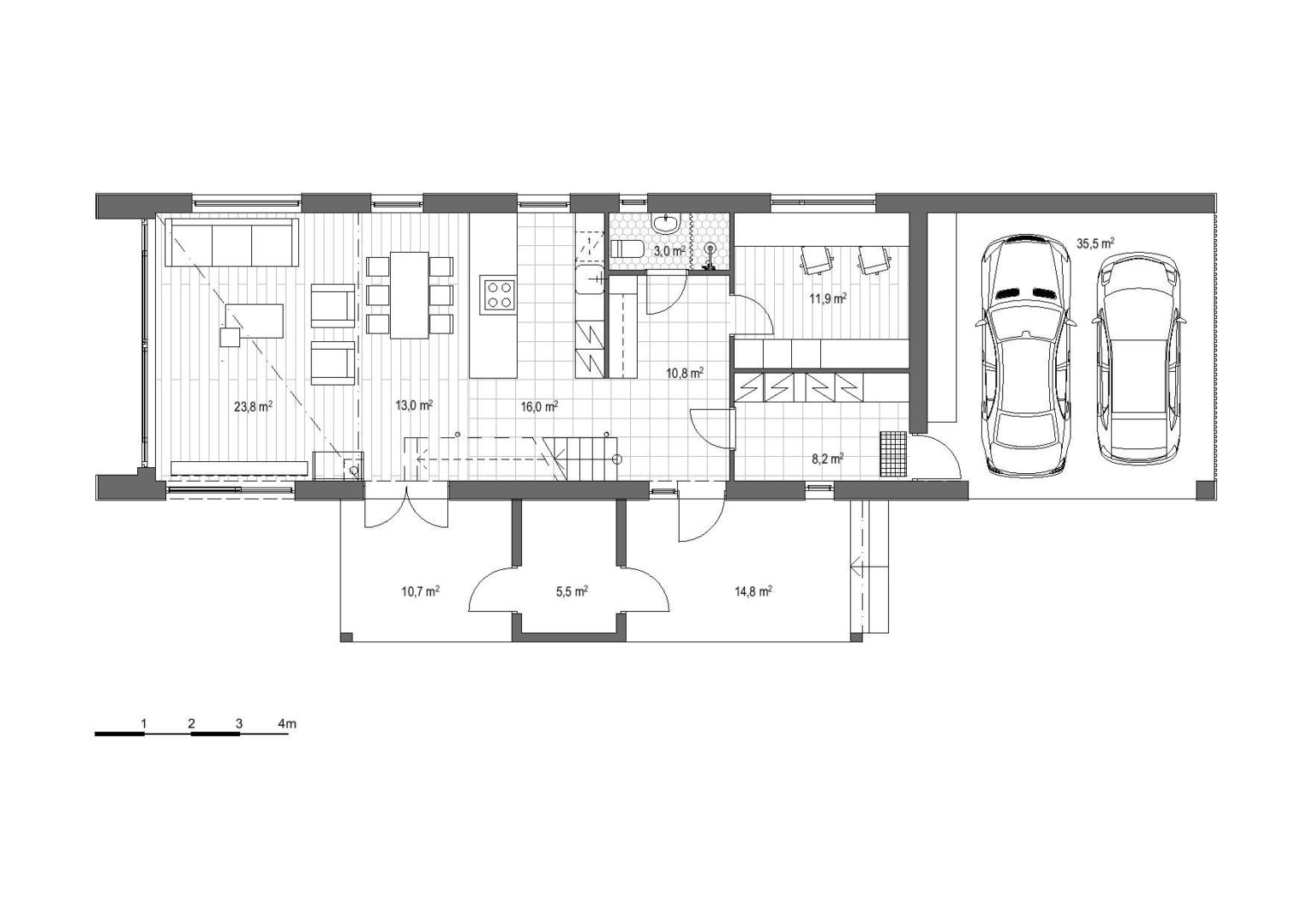
Двосвітня вітальня з великими вікнами утворює єдиний вільний простір разом з кухнею та їдальнею. В іншій частині будинку розташована робоча кімната, гараж та технічне приміщення.
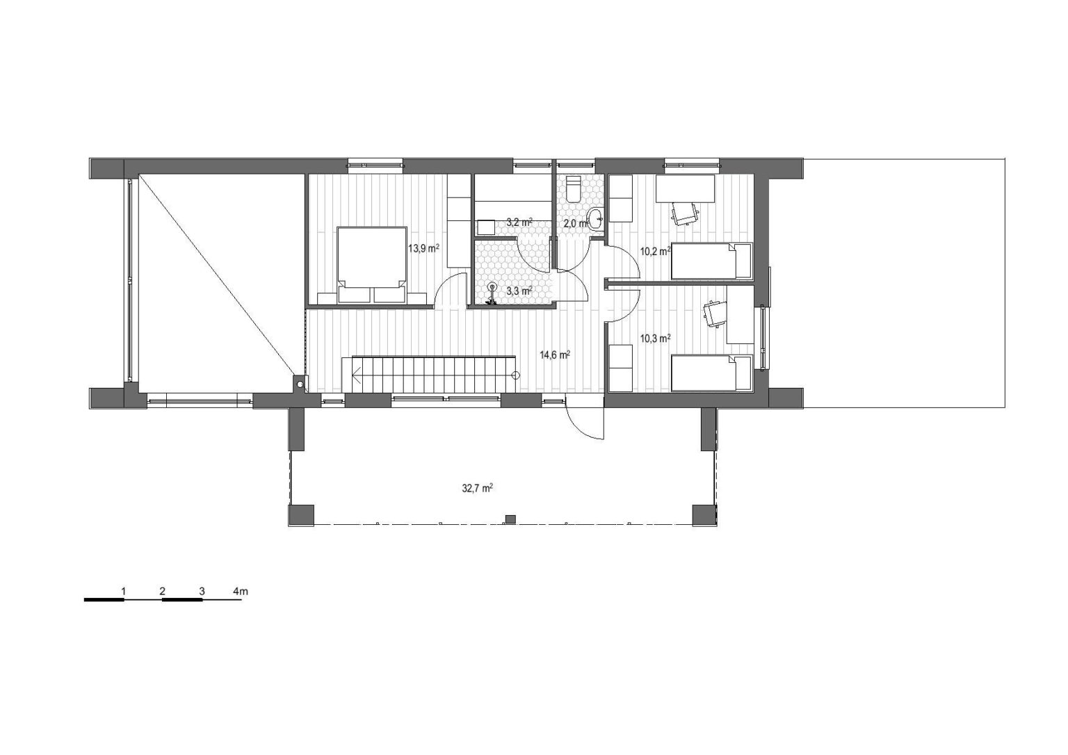
Сходи над вхідною групою ведуть на другий поверх з приватними приміщеннями. Тут розташовані спальні, сауна та ванна кімната.
Мінімалістичний фасад є доволі динамічним завдяки ритмічній грі вікон різної форми, темних панелей та світлих деревʼяних елементів.
Будь який проєкт Finnlog може бути змінено згідно ваших бажань.



















































































































































































































































































































































































































































































