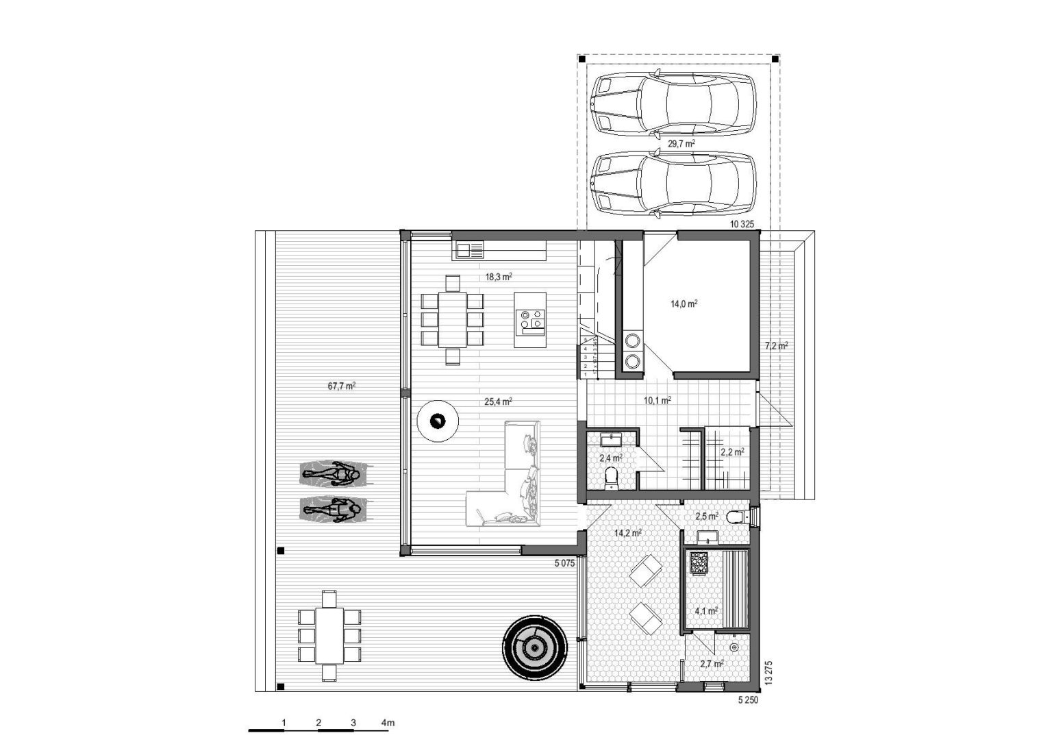
В цьому проєкті прямі форми поєднуються з консольними елементами. Будинок спроектовано з урахуванням міських умов.
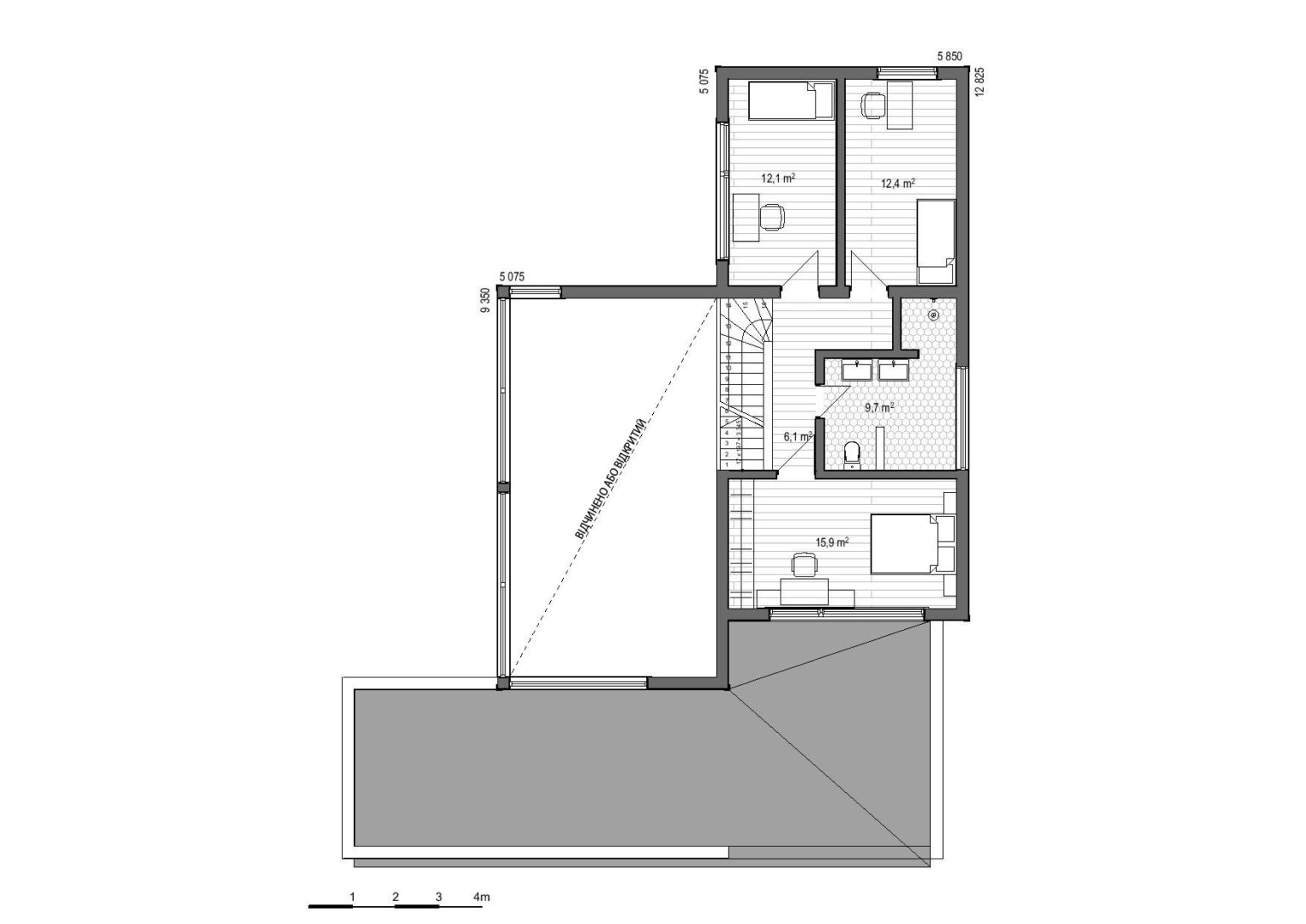
Вуличний фасад та фасади з боків зроблені таким чином, аби зберегти приватність. На внутрішньому фасаді розташовані величезні панорамні вікна, що наповнюють будинок світлом. З середини за цими вікнами розташовується двосвітня вітальня і кухня-їдальня. Другий поверх повністю приватний, з трьома спальнями та великою ванною кімнатою.
Особливістю проекту Canopus є максимальне використання внутрішнього простору, а також велика тераса з внутрішньої сторони будинку.
Будь який проєкт Finnlog може бути змінено згідно ваших бажань.



















































































































































































































































































































































































































































































