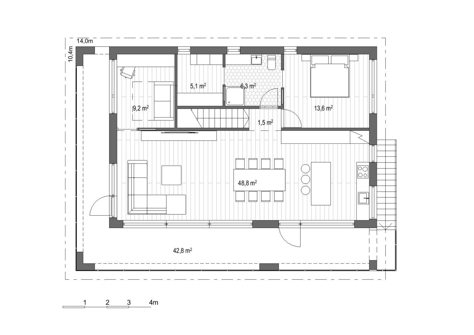
Проєкт Devana характеризується простою, земною мовою дизайну. Будинок в плані вписаний в прямокутник, його планування чітке і практичне. Кімнати отримують багато денного світла завдяки великим вікнам. Простора кухня дозволяє сім’ї з дітьми безперешкодно займатися повсякденними справами.
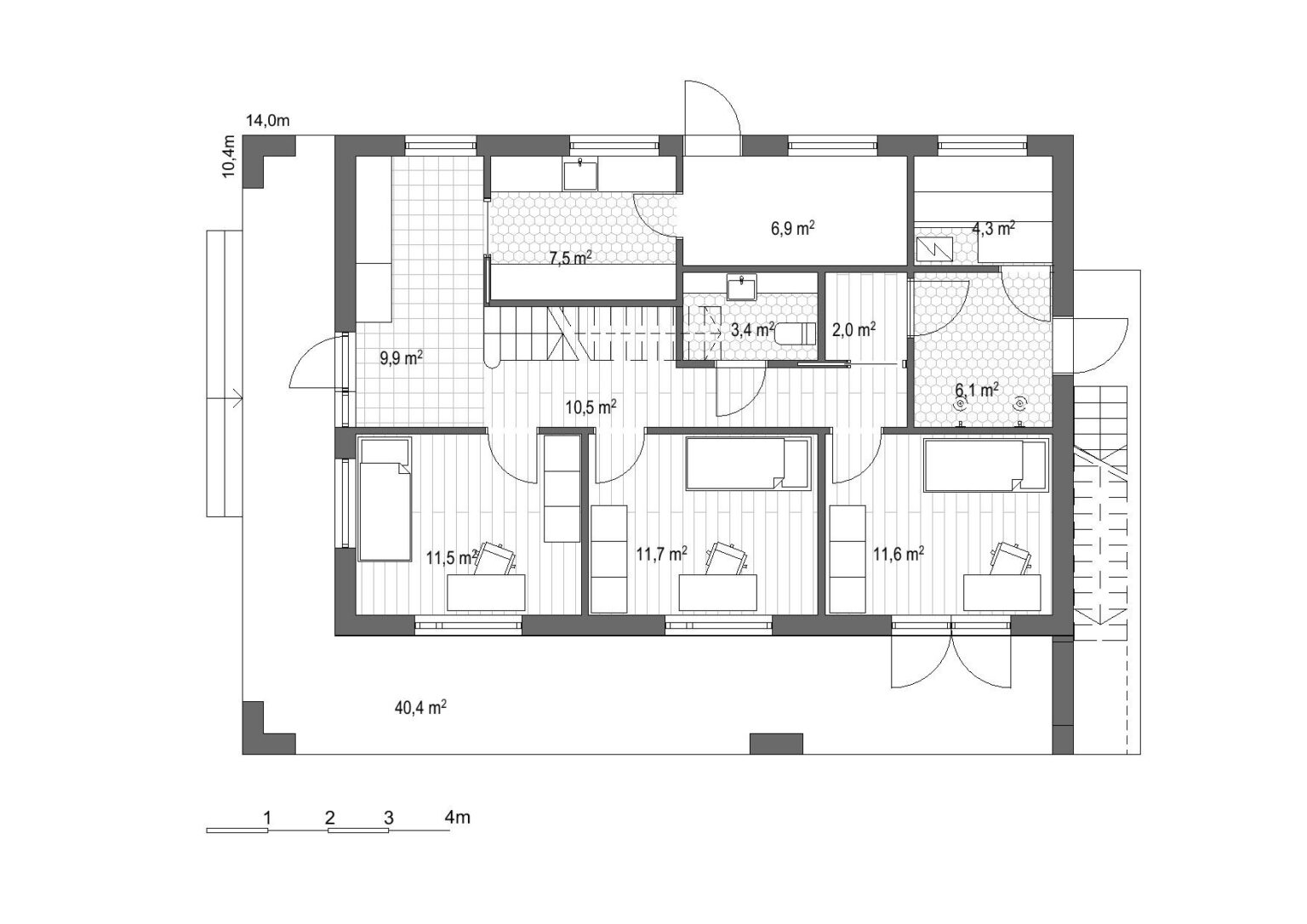
Перший поверх повністю приватний — тут розташовані спальні, сауна, ванна кімната і підсобні приміщення. На другому поверсі — кухня, вітальня, велика спальня і кабінет.
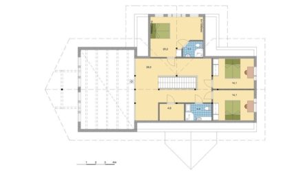
Другий поверх також має великий балкон, який вписаний в конструкцію колон, що підтримують скатний дах.
Будь який проєкт Finnlog може бути змінено згідно ваших бажань.



















































































































































































































































































































































































































































































