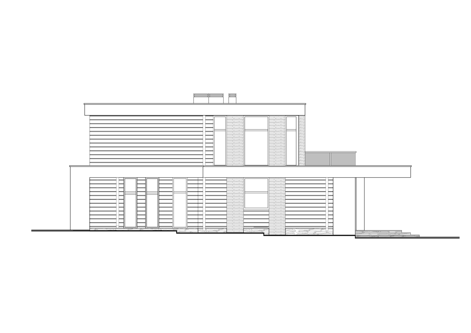
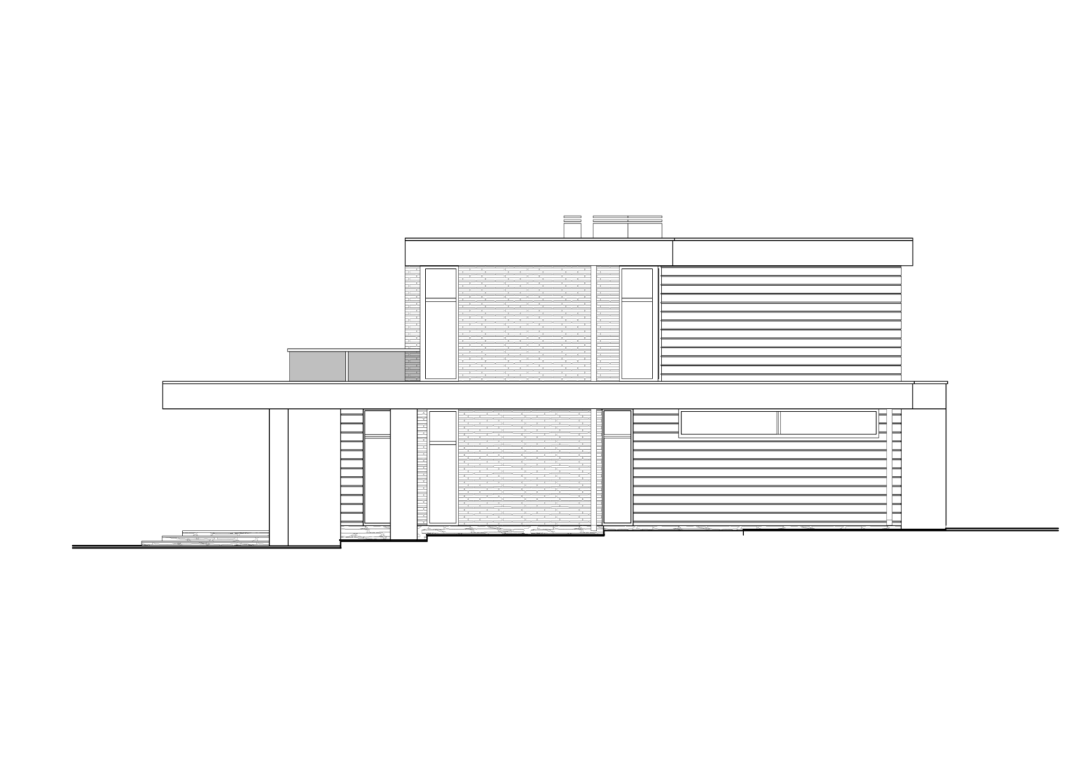
Lavryn — це двоповерховий будинок у сучасному стилі з клеєного брусу, зовні оздоблений металом та натуральним каменем. Будинок розрахований на велику родину, і має продумане планування для різноманітних сценаріїв щоденної рутини і святкових подій.
Проєкт розроблено українським архітектором Дмитром Фоменком.
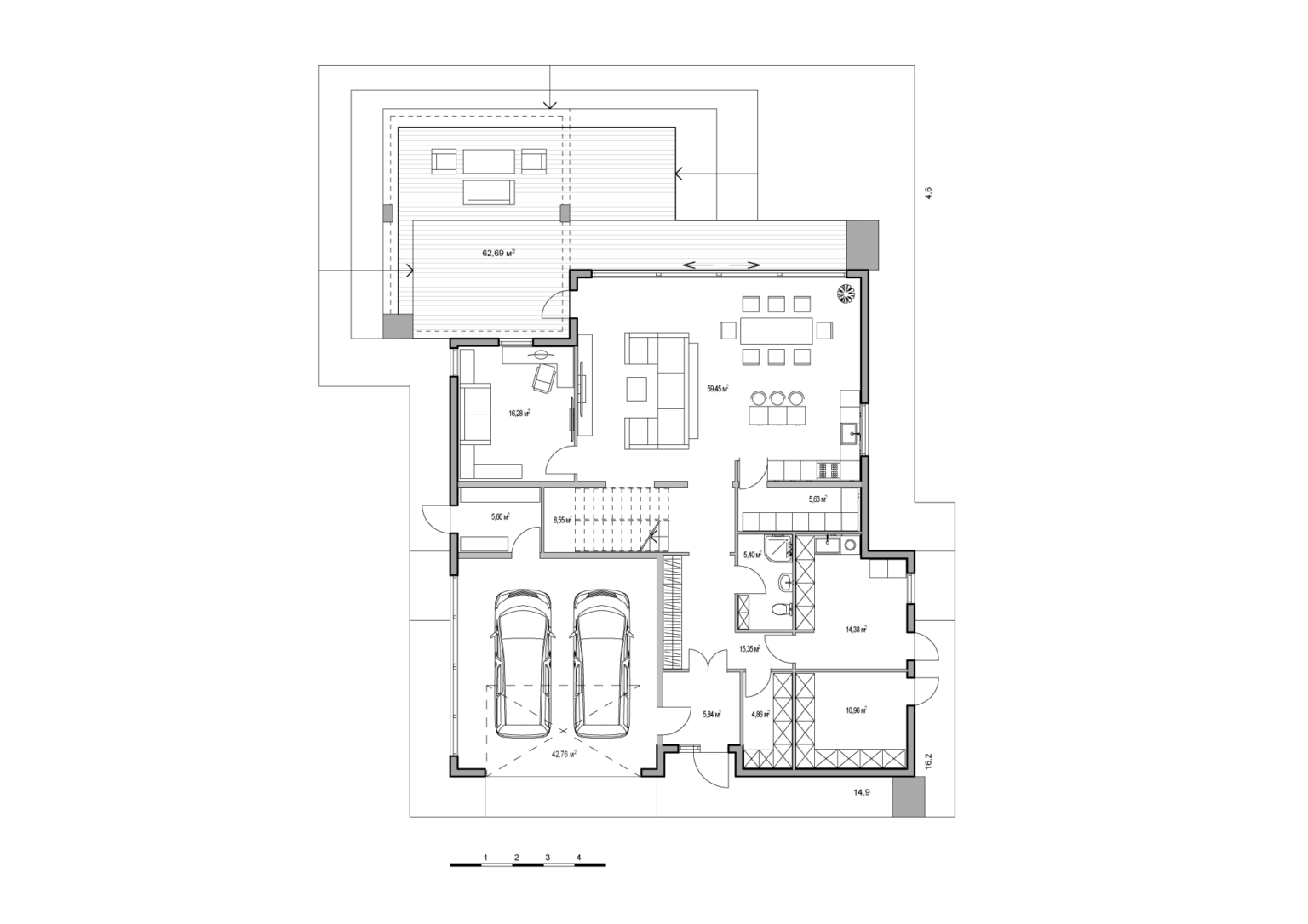
Перший поверх будинку відведено для зони відпочинку та різноманітних побутових приміщень. Велика вітальня складається з трьох зон: зона для спілкування та відпочинку, кухня та велика їдальня. Звідси можна потрапити у великий кабінет, і вийти на велику криту терасу, що розташована вздовж внутрішнього фасаду. Поруч також є санвузол, а кухня має додаткове приміщення, аби мати можливість готувати ароматні страви, не заважаючи оточуючим.
З побутових приміщень тут розташовані гараж на два авто, комора, пральня та котельня, які мають додаткові виходи на вулицю.
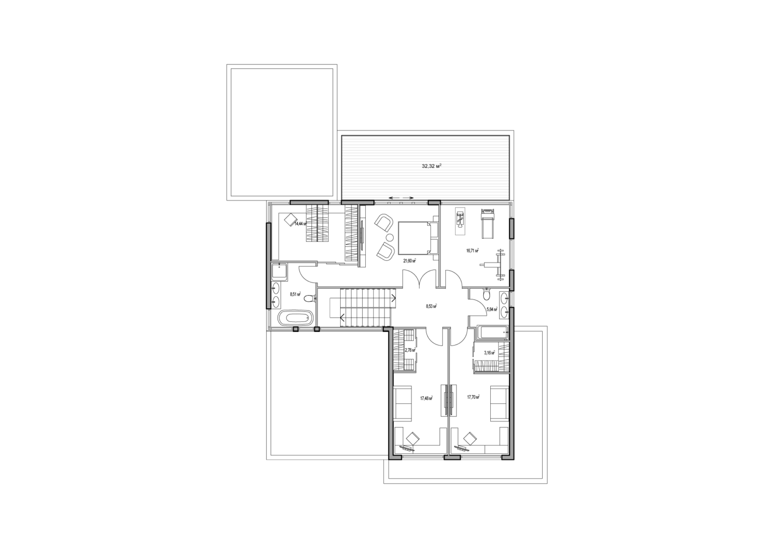
Другий поверх повністю приватний — тут знаходяться три спальні кімнати та спортзал. Мастер-спальня облаштована власним гардеробом, санвузлом та виходом на простору видову терасу.
Lavryn ідеально вписується в лісову атмосферу серед дерев, а також у передмісті із зеленими газонами.
Проєкт може бути змінено відповідно до ваших бажань!
Дмитро Фоменко — український архітектор, власник архітектурного бюро “Arte Development”, яке працює в Україні з 2000 року. Має великий досвід в проєктуванні і реалізації проєктів приватного житла. Основним принципом своєї роботи називає розумне поєднання зовнішнього вигляду будинку з його інтерʼєром та функціональністю.
З 2022 року Дмитро є учасником “групи Фостера” — робочої групи харківських архітекторів і урбаністів, які співпрацюють з командою британського архітектора Нормана Фостера у проєкті відбудови Харкова.
https://arte-development.com/ua



















































































































































































































































































































































































































































































