Long-Short-Long це продукт співпраці Finnlog та естонського архітектора Сіґне Олопа. Ось його розповідь про будинок.
Дім — це тепле і безпечне місце для кожного, а використання дерева забезпечує відчуття добробуту і спокою кожного дня. Дерево — дуже симпатичний і теплий матеріал.
Проектуючи цей будинок, я думав про більшу, ніж зазвичай, ділянку.
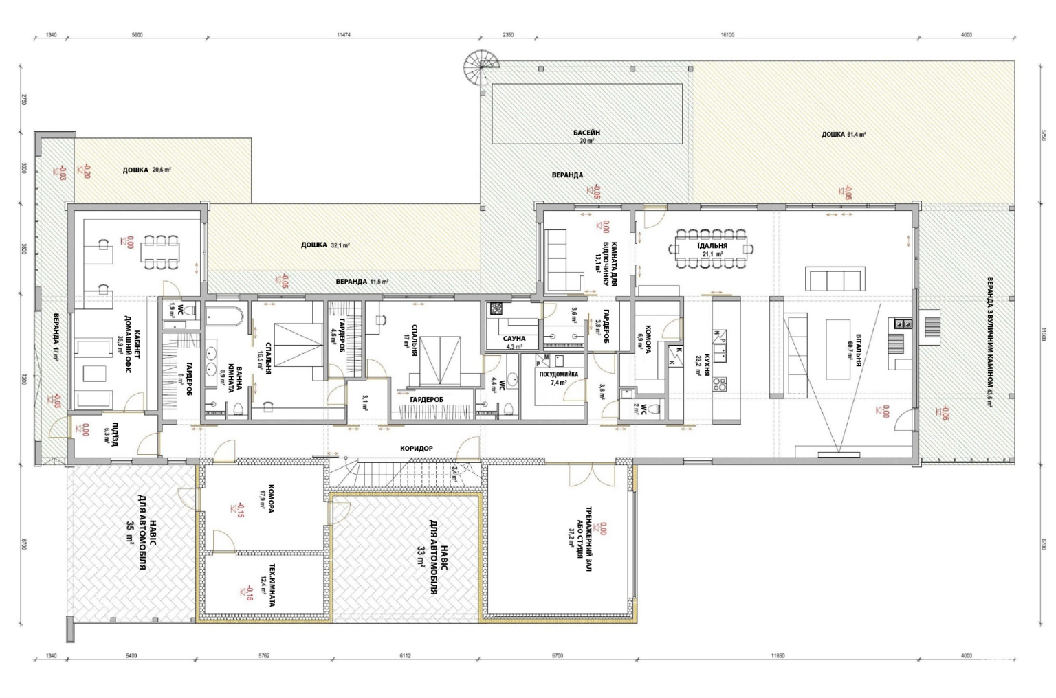
Від вхідних дверей з зовнішнього боку будинку іде коридор, схожий на довгу вулицю, з житловими зонами на сонячній стороні і технічними та підсобними приміщеннями на тіньовій стороні. Затінені простори можна добудувати, або змінити площу відповідно до потреб власника будинку.
Вулиця-коридор переходить у площу, або вітальню зі злегка відокремленою кухнею-їдальнею, яка також має власну комору для зберігання продуктів та приладдя.
Між кухнею і спальнями розташований блок сауни, який через коридор з’єднується з простором спортзалу.
Коридор можна подовжити або вкоротити відповідно до бажаної кількості кімнат і площі приміщення. Розмір вітальні та кухні також можна змінювати, завдяки чому будинок подовжується або коротшає.
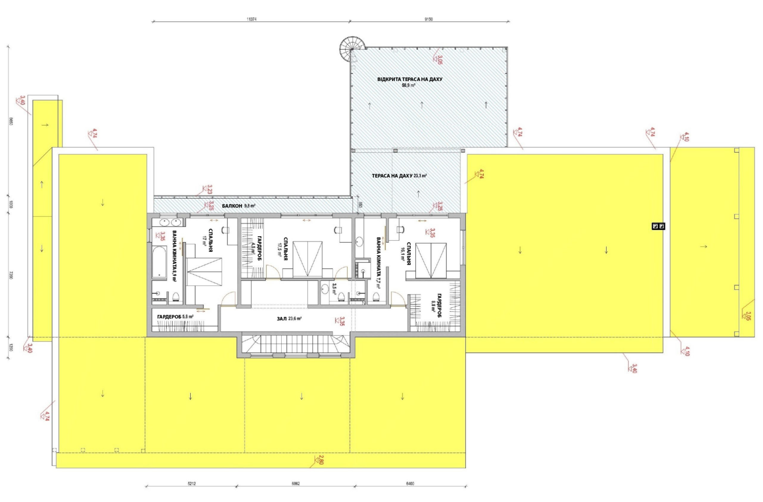
Додавши сходи, будинок можна розширити за рахунок часткового другого поверху зі спальнями, балконом і терасою на даху. Розмір другого поверху також можна варіювати залежно від необхідної площі та побажань власника.
Спальні, сауна, кухня і вітальня виходять на тераси. Тераси з дахом або без даху є гарним доповненням до цього будинку.
З іншого боку, за каміном у вітальні розташована крита тераса з каміном на відкритому повітрі.
Дах будинку на дерев’яному каркасі покритий темно-сірими гладкими листами і має один схил. Верхній край схилу завершений парапетом, а нижній — карнизом у вигляді відкритих крокв.
Технічні приміщення та навіси для автомобілів на затіненому коридорному боці будівлі ззовні оздоблені кам’яним облицюванням.
Будь який проєкт Finnlog може бути змінено згідно ваших бажань.



















































































































































































































































































































































































































































































