Ulas — це просторий одноповерховий будинок, виконаний у сучасній стилистиці з використанням дерева, метала і натурального каміння. Будинок ніби розчиняється у природному середовищі — матеріали доповнюють один одного і створюють атмосферу розкоші та процвітання.
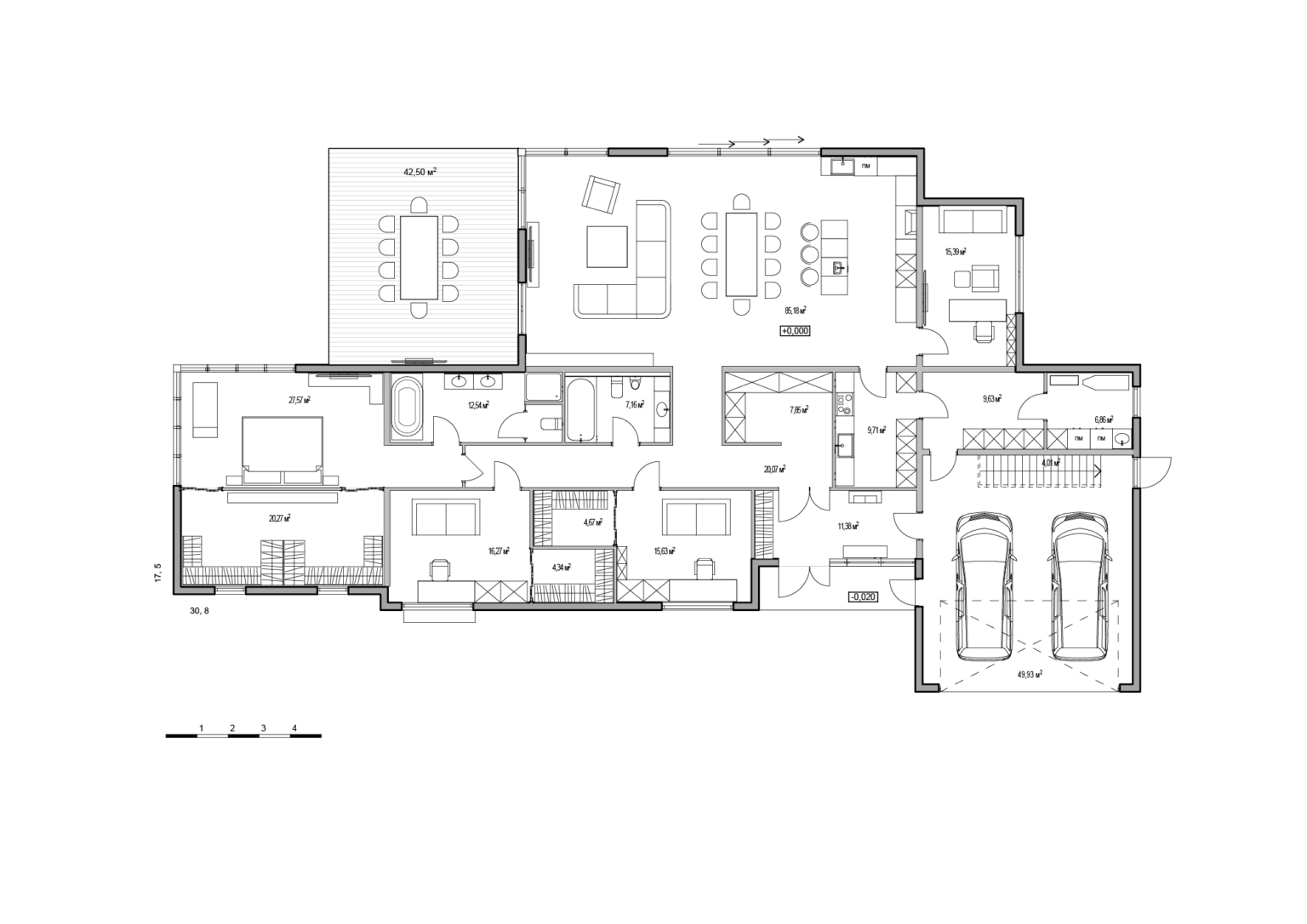
Велика вітальня будинку складається з трьох зон: простір для спілкування та відпочинку з каміном, їдальня та відкрита кухня, яка має додаткове приміщення для готування та зберігання. Вітальня має вищу за всі інші кімнати стелю і вікна по периметру для кращого освітлення. Звідси можна вийти на простору і водночас затишну терасу, у внутрішньому дворі.
Кабінет виходить вікнами на головний фасад, та має вихід у двір. У холі розташований санвузол для гостей та підсобні кімнати. Під приміщенням гаражу передбачене укриття, розміри та наповнення якого залежать тільки від ваших потреб. Зона укриття спеціально облаштована з краю будинку, аби мати можливість зробити другий вихід на поверхню на віддаленні від основної будівлі.
Цей будинок ідеально вписується в лісову атмосферу серед дерев, а також у передмісті із зеленими газонами.
Будь-який проєкт Finnlog може бути змінено згідно ваших бажань.
https://arte-development.com/ua



















































































































































































































































































































































































































































































