Цей сучасний одноповерховий будинок гармонійно зливається з навколишньою природою, забезпечуючи максимальну приватність та захопливі краєвиди.
Мінімалістична архітектура, великі панорамні вікна від підлоги до стелі та просторі вкриті тераси створюють плавний перехід між внутрішнім і зовнішнім простором. Натуральні матеріали та елегантне оздоблення фасаду надають будинку позачасового й вишуканого вигляду.
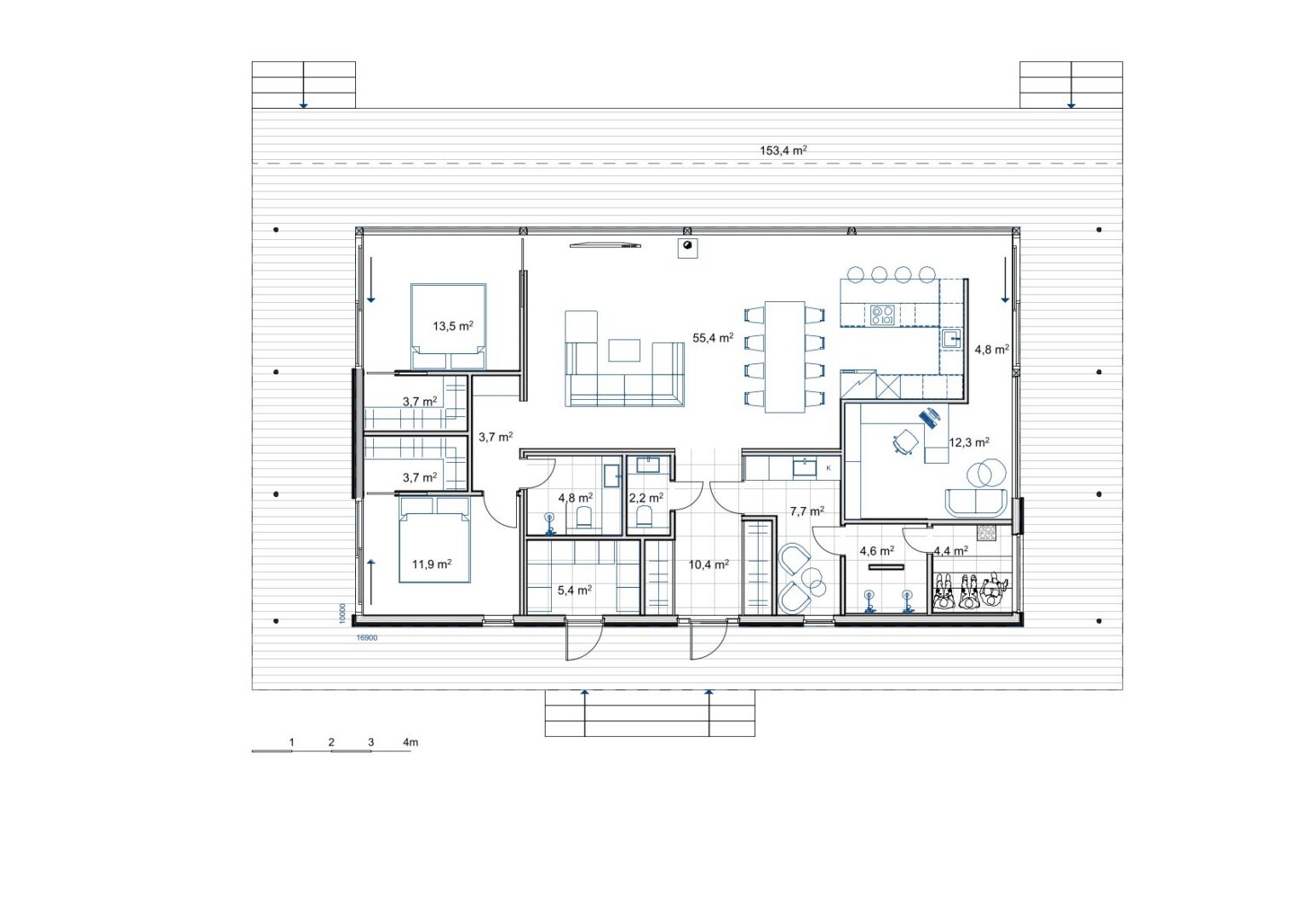
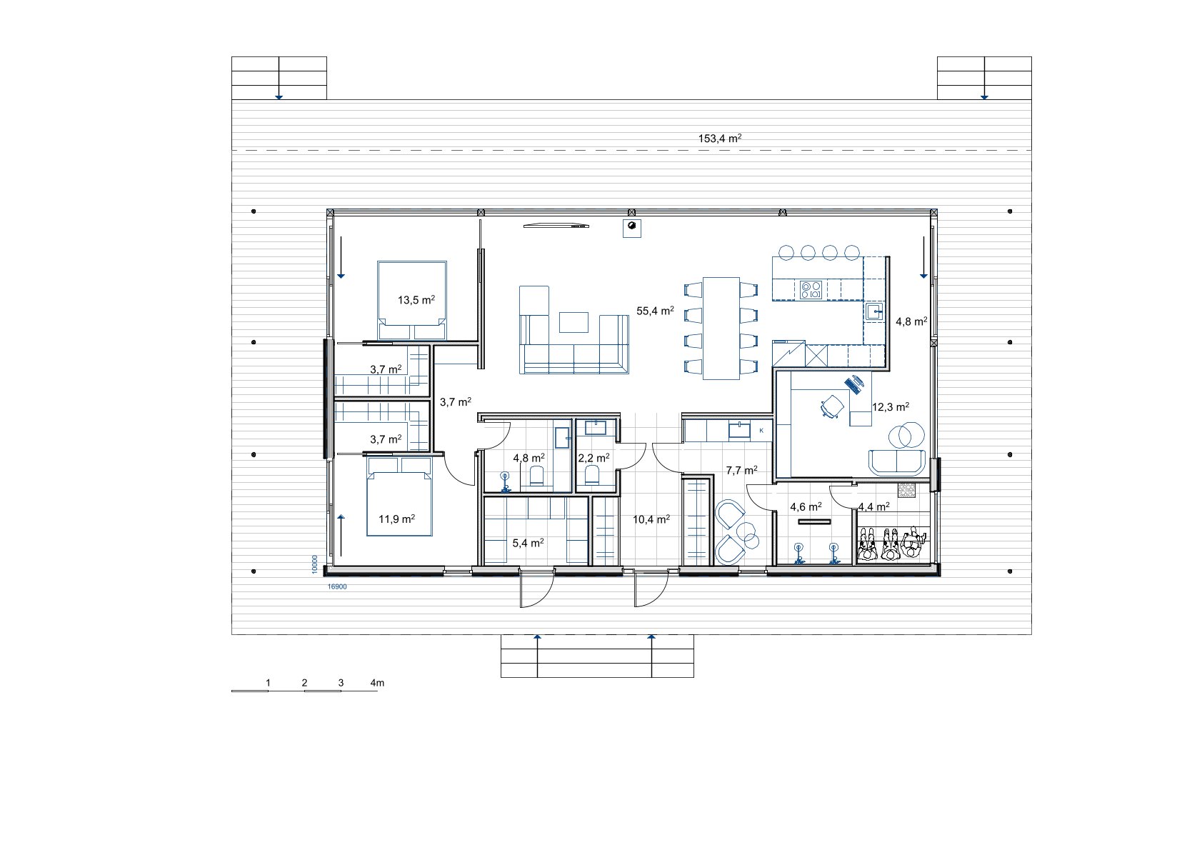
Продумане просторе планування гарантує світлі, наповнені повітрям житлові приміщення та чудові види на природу. Якісні рішення та уважність до кожної деталі забезпечують комфорт навіть найвибагливішому власнику.
Цей будинок стане ідеальним вибором для тих, хто цінує сучасний дизайн та близькість до природи.




























































































































































































































































































































































































































































































