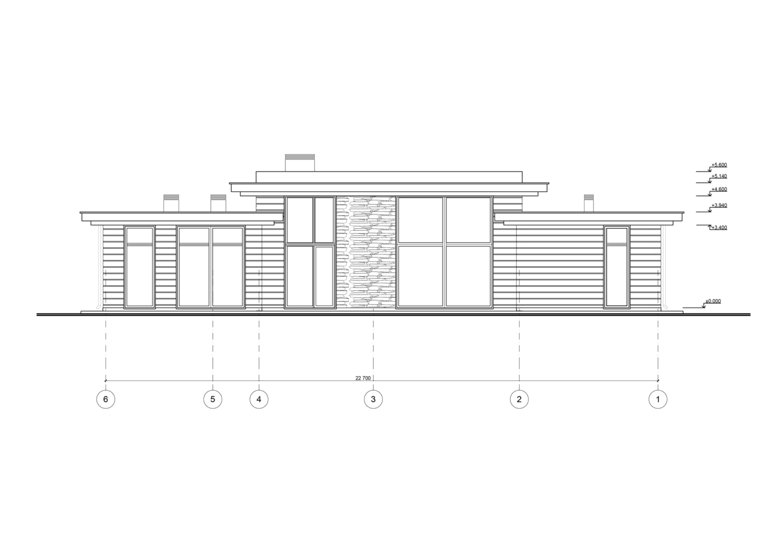
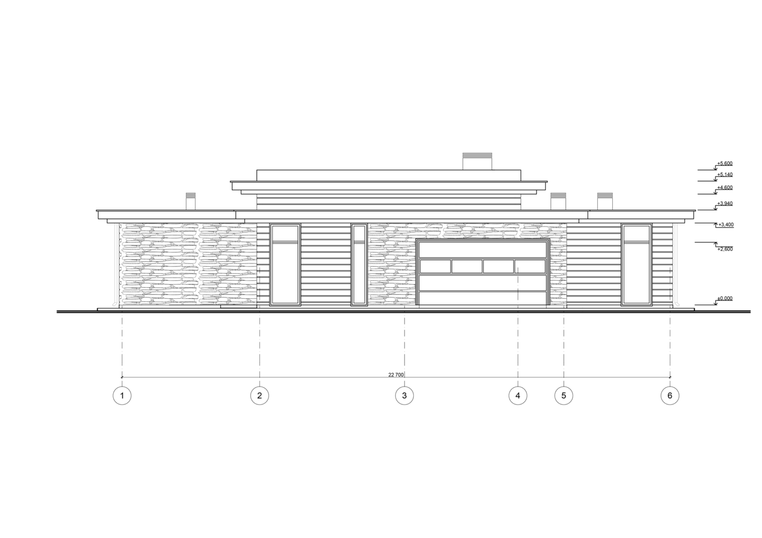
Будинок з клеєного бруса Vassa — це простора одноповерхова вілла в сучасному стилі. Завдяки фризу по периметру та великим вікнам будинок ніби розчиняється у природному середовищі. Дерево, метал і натуральне каміння — всі ці матеріали доповнюють один одного і створюють атмосферу розкоші та процвітання.
У будинку розташована велика вітальня, що складається з трьох зон: простір для спілкування та відпочинку, де можливо встановити камін, зони кухні та їдальні. Вітальня має вищу за всі інші кімнати стелю і вікна по периметру для кращого освітлення. Головна спальня суміжна з великою ванною кімнатою з вікном та просторим гардеробом. Дві інші спальні мають окремі санвузли. Поруч з вітальнею також є кабінет, що виходить вікнами у внутрішній двір та має вихід на терасу.
У холі розташований гостьовий санвузол з душовою кабіною. Також через хол можна потрапити в котельню та гараж для двох автомобілів. Під приміщенням гаражу передбачене укриття, розміри та наповнення якого залежать тільки від ваших потреб. Зона укриття спеціально облаштована з краю будинку, аби мати можливість зробити другий вихід на поверхню на віддаленні від основної будівлі.
На терасу, що проходить вздовж внутрішнього фасаду будинку, можна вийти з багатьох кімнат.
Цей будинок ідеально вписується в лісову атмосферу серед дерев, а також у передмісті із зеленими газонами.
Будь-який проєкт Finnlog може бути змінено згідно ваших бажань.
https://arte-development.com/ua




























































































































































































































































































































































































































































































