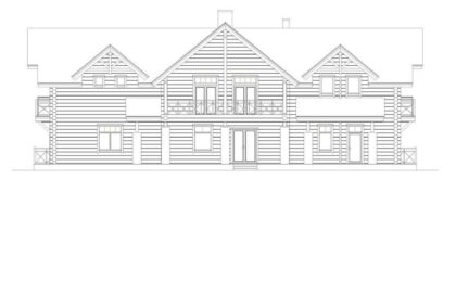
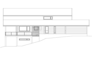
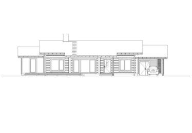
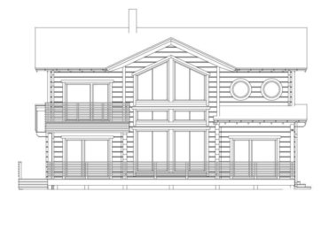
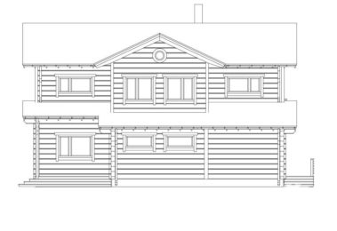
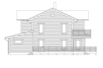
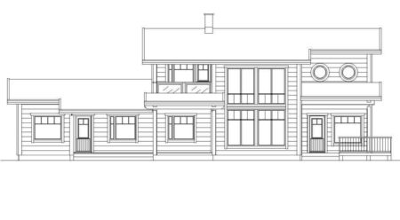
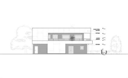
Sagitta ідеально підходить для людей, які цінують заміський спосіб життя. Будинок раціональний, але в той же час красивий. Він несе в собі впевненість і дух північних лісів, річок і озер, які пам’ятають епоху скандинавських вікінгів.
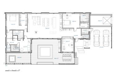
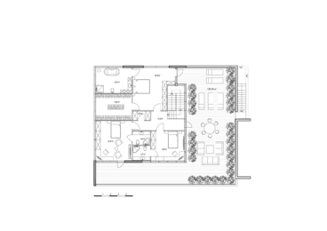
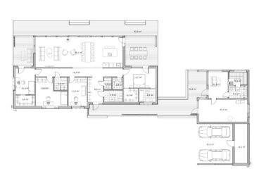
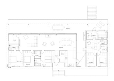
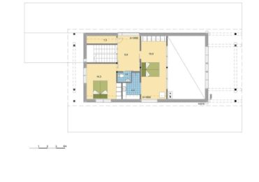
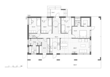
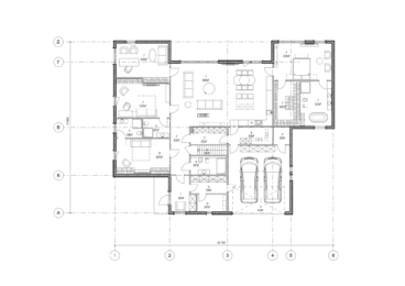
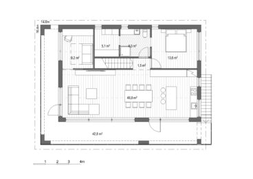
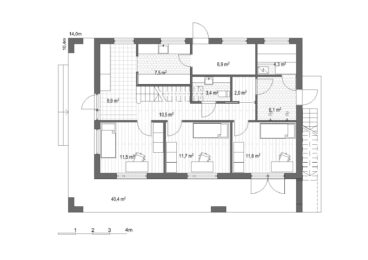
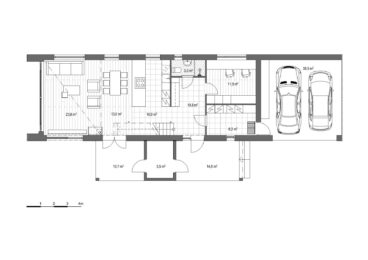
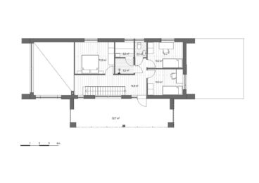
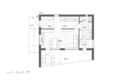
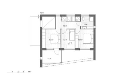
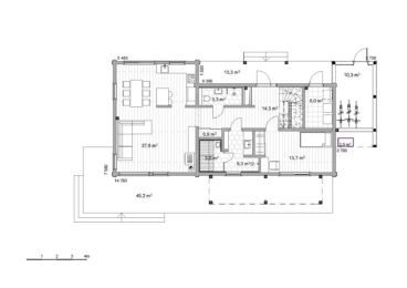
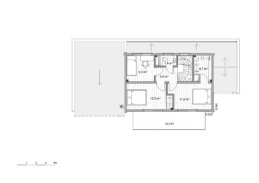
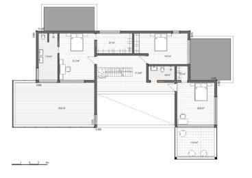
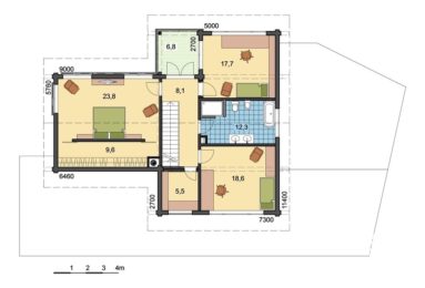
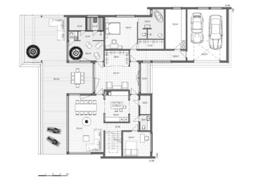
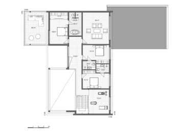
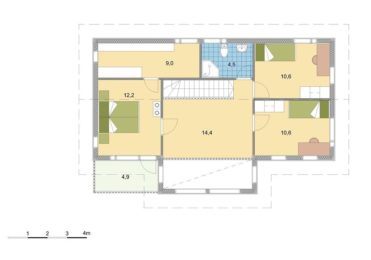
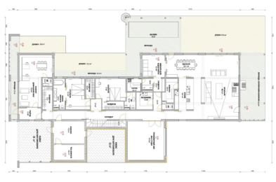
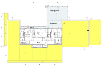
Планування продумане до дрібниць. Простора двосвітня вітальня з великими вікнами і темними деревʼяними балками під двоскатним дахом вражає своїм масштабом. Поруч розташована велика зона лазні, а також дві затишні спальні. Другий поверх відведений під спальні з ванними кімнатами.
Будь який проєкт Finnlog може бути змінено згідно ваших бажань.




























































































































































































































































































































































































































































































